SanderSon Bay Fine Homes SanderSon Bay Fine Homes





Print Floor Plan

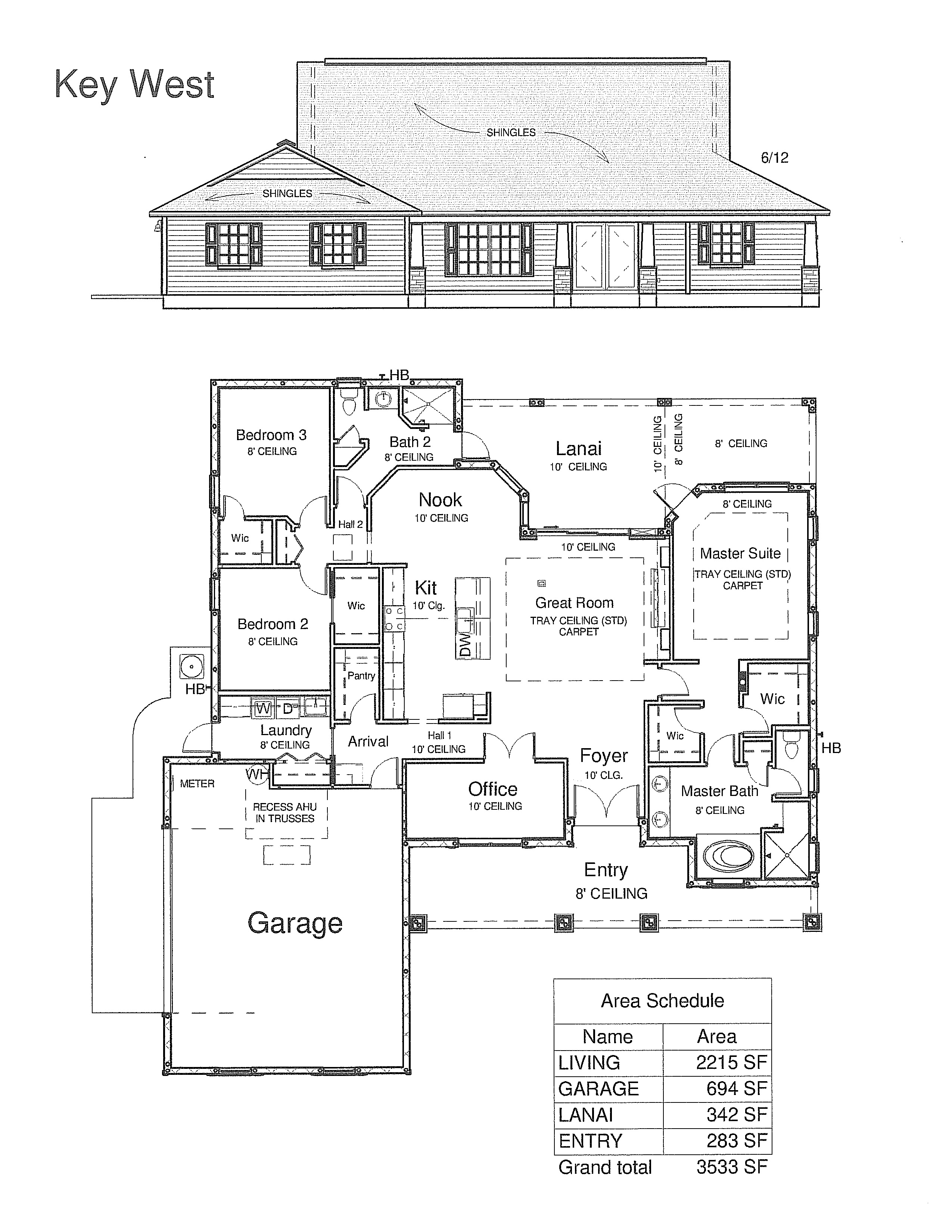
Key West Graphic Design Key West Floor Plan





Print Floor Plan